A to ja coś wymyśliłem ?

Kurde nie pamiętam
Prawdopodobnie masz rację,studiowałem to kiedyś i było blisko ale już nie pamiętam o co tam biegało,więc padło na knyf z mostkiem i ameryka
W każdym razie podmiana samego cpu nie rozwiązuje istoty problemu -jest różnica w wiązce między usa,a euro w 93 - to sa małe różnice ale są jednak,bo później było jeszcze gorzej
Schematu do 93 wiązki euro nie uświadczysz ponieważ tam była dokładana zewnętrzna wiązka w europie m.in. do własnie dalekosiężnych,przeciwmgielnego,kontrolki awaryjnych,innej zasady działania świateł ale
tą wiązkę można wypiąć i zmostkować ori kostki/wiązki jak w usa i masz niezależne halogeny.
W 93 euro tez był włącznik do niezależnego podnoszenia lamp
Jak w czymś mogę pomóc,to pytaj - coś tam jeszcze pamiętam..chyba
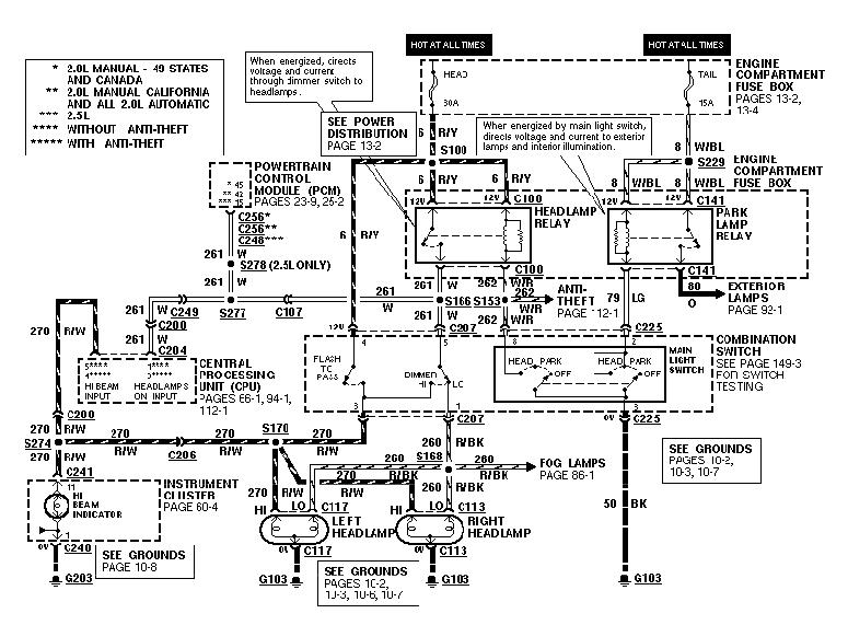
Istnieją dwa sposoby zrobienia w wersji euro o czym mowa w temacie.
Pierwsza to dioda i mostkujemy nią dwa piny/przewody w kostce/złączu C207.
Dioda :1 x 1N5408(3A 1000V)
Dla ułatwienia:
Drugi sposób obejmuje ingerencje w CPU, ale ten jest najbardziej pragmatyczny, więc odpuszczę sobie opisywanie tego.
Pozdro.